✕
Kleinwohnungen, Basel
- Verfahren: offener Wettbewerb, Wertungsrundgang 3 von 3
- Statik: Schwarber Staub Bauingenieure
- Visualisierung: 3D Studio
- Auftraggeber: Kanton Basel-Stadt
- Datum: August 2020




Situation und Absicht
Inmitten des sich wandelnden Quartiers Kleinhüningen-Klybeck soll das ursprüngliche Verwaltungsgebäude des Rheinschiffahrtsamts an der Hochbergerstrasse zu einem Wohngebäude umgenutzt werden. Die Hochbergerstrasse wird im Zuge der städtebaulichen Entwicklung der Westquai-Halbinsel am Dreiländereck und der geplanten Verbindung über eine neue Rheinbrücke auf die französische Seite an Bedeutung gewinnen.
Die Absicht des Projektvorschlags ist es ein ökologisch, ökonomisch und architektonisch vorbildliches Projekt für den steigenden Bedarf an Kleinwohnungen zu schaffen, das durch sein Nutzungsangebot und seinen Ausdruck das Quartier bereichert und einen positiven Impuls für die weitere städtebauliche Entwicklung gibt. Das Gebäude bietet unterschiedliche Orte um sich zu treffen und etwas gemeinsam zu tun, um zu verweilen und sich auszutauschen.
Architektur und Gebäudetypologie
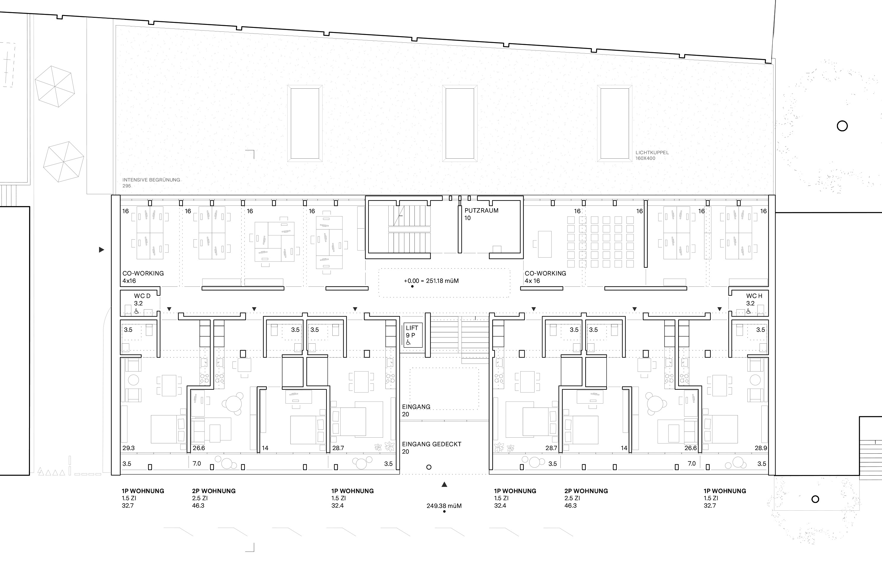
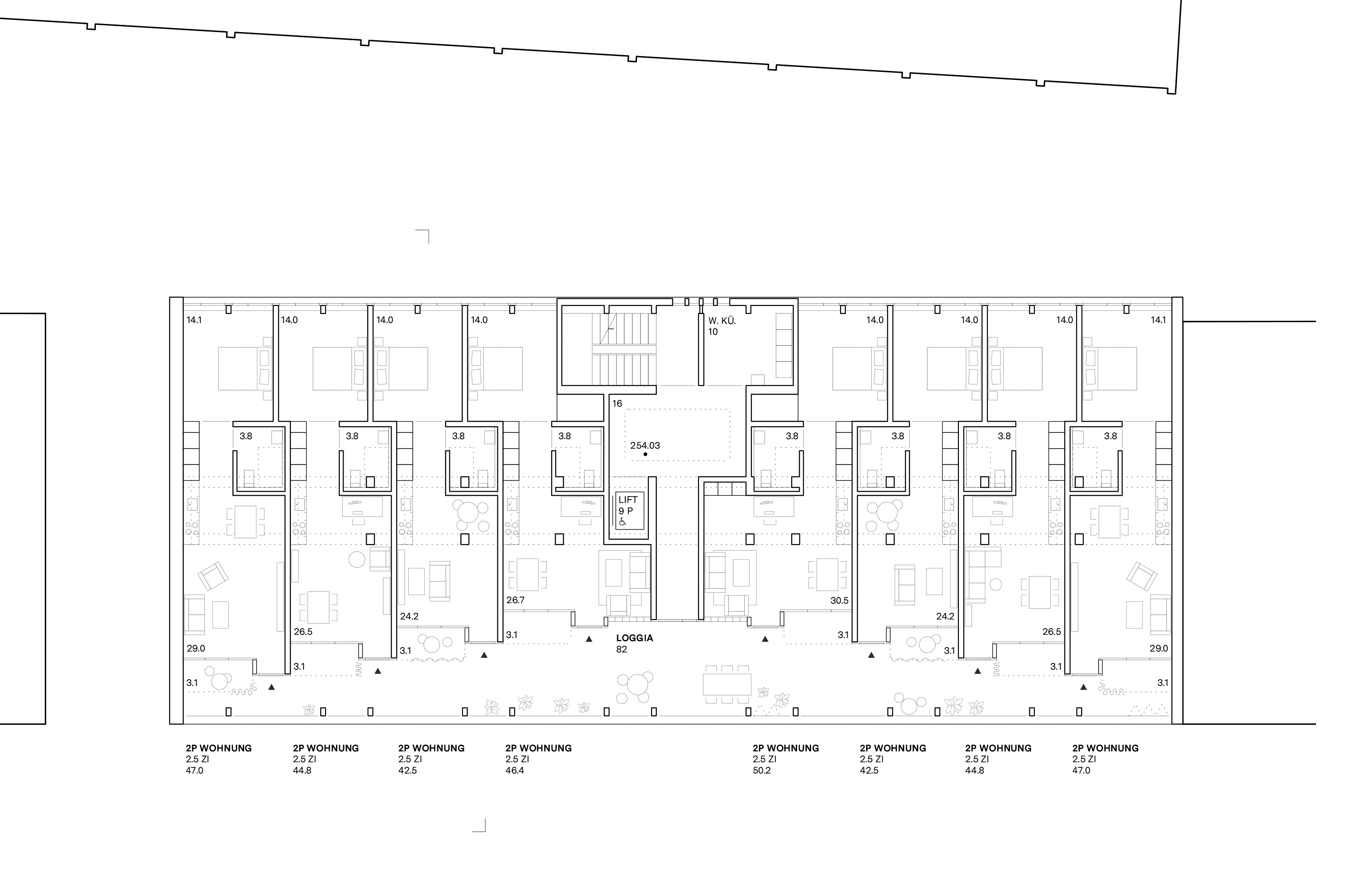
Hauptmerkmal des Umbaus ist die offene, einladende Strassenfassade, hinter der sich in den drei Regelgeschossen eine grosszügige Loggia befindet. Die Loggia ist Wohnungserschliessung und Gemeinschaftsraum zugleich. Der Raum spannt sich auf zwischen der Stützenreihe an der Fassade und einer mäandrierdenden thermischen Gebäudehülle. Durch die vorspringenden, geschlossenen Wohnungseingangstüren und die zurückspringenden, raumhohen Fenster werden kleine private Aussenräume definiert, welche zusätzlich mit einem Vorhang abgetrennt werden können und so eine Art «Filterschicht» zu den privaten Wohnräumen bilden. Betreten wird die Loggia in der Gebäudemitte, wo der Raum die grösste Tiefe aufweist. Nach aussen verjüngt sich die Loggia.
Der Haupteingang wird räumlich vergrössert und ein neuer Liftschacht wird eingebaut. Die Hobby- und Gemeinschaftsräume befinden sich im Flachbau des Tiefparterres, die Arbeitsräume auf der Nordseite des Hochparterres. Die Anlieferungsrampe im Flachbau des Tiefparterres wird zurückgebaut, um eine ebenerdige Verbindung von innen nach aussen zu schaffen. Das Dachgeschoss wird im Innern komplett neu organisiert. Über den bestehenden Treppenhausturm gelangt man auf das oberste Dach, wo sich eine grosszügige Gemeinschaftsterrasse befindet.
Statisches Konzept
Der Bestandesbau weist eine klare Tragstruktur auf, mit vier Stützenachsen in Gebäudelängsrichtung, zwei Brandabschnittsmauern in Gebäudequerrichtung sowie einem Treppenhauskern. Die Flachdecken spannen mehrheitlich orthogonal zu den Stützenreihen, einzig das Deckenfeld im westlichen Bereich weist eine in Gebäudelängsrichtung verlaufende Tragrichtung auf. Das Projekt sieht vor, die tragende Wand zurückzubauen und die mittleren beiden Stützenachsen zu ergänzen. Die Decken sowie die Unterzüge im Westteil können mittels CFK-Lamellen verstärkt werden.
Das enge Stützenraster an der Südfassade wird um jede dritte Stütze erleichtert. Die relativ geringe Zusatzbelastung von ca. 33% der Stützen kann durch die oftmals vorhandenen Reserven aufgenommen werden. Die Krafteinleitung in die Stützen ist mittels Dübel ohnehin zu verstärken. Die Deckenplatten werden im Stirnbereich mit einem kraftschlüssig verbundenen neuen Ortbetonträger verstärkt.
Das Gewicht des neuen Bodenaufbaus wird minimal gehalten wodurch die neue Raumaufteilung, insbesondere die Wohnungstrennwände, in Sichtmauerwerk erstellt werden können.
Die Erdbebenertüchtigung in Gebäudelängsrichtung erfolgt mittels Aufdopplung der inneren Treppenhauswand und wird vom Attikageschoss bis Untergeschoss durchgezogen.
Wohnungstypologie
Die Regelwohnungen für zwei Personen im ersten bis dritten Obergeschoss werden über die grosse Loggia erschlossen. Man tritt über eine minimale Eingangszone in den Wohn-/Essraum ein, der zur Loggia, nach Süden ausgerichtet ist und eine Mindesbreite von 3.80 m aufweist. Jeweils zwischen zwei Eingangstüren spannt sich vor dem Wohnraum ein kleiner, privater Aussenbereich auf, eine Art Loggia in der Loggia. In der Mitte der Gebäudetiefe befindet sich die Küchenzeile sowie das Bad. Von hier aus gelangt man ins Schlafzimmer, welches nach Norden ausgerichtet ist. Es ist 14.0 m2 gross und 3.30 m breit.
Die Kleinwohnungen im Hochparterre verfügen über einen Eingangsbereich, der zu Küche, Réduit und Bad übergeht. Aus der Küche gelangt man in das Wohn- und Schlafzimmer, welche nach Süden ausgerichtet sind und über einen kleinen Aussenbereich an der Fassade verfügen.
Die Dreipersonenwohnungen befinden sich im Dachgeschoss. Sie werden über die Terrasse im Süden erschlossen, zu der Wohnraum und Küche ausgerichtet sind. Die zwei Individualzimmer liegen an der Nordfassade und verfügen über eine private Terrasse. Die Wohnungen sind durch ein Wandkreuz in vier Quadranten gegliedert, welche über einen Rundlauf um das Bad miteinander verbunden sind.
Materialisierung
Nach dem Prinzip der bestehenden, horizontalen Ortbetonbänder auf der Nordfassade werden die Deckenstirnen auf der Südseite durch neue Ortbetonträger verstärkt und abgeschlossen. Die bestehenden Fensterbrüstungen auf der Südseite werden zurückgebaut und durch ein Staketengeländer aus Metall ersetzt. Die thermische Gebäudehülle auf der Südseite besteht aus Holzfenstern, der Boden der Loggien aus Natursteinplatten.
Im Gebäudeinnern wird die Direktheit und Materialechtheit der Fassade weitergeführt. Die Betondecken werden roh belassen. Die Wohnungstrennwände sind mit Kalksandsteinen aufgemauert und gestrichen. Die Böden sind in Sichtanhydrit, die Fenster aus Holz.
Gebäudetechnik
Die seriellen Grundrisstypologien in den verschiedenen Geschossen erlauben durchgehende Steigzonen für die Haustechnikinstallationen. Dank der hochisolierenden Fenster, Türen und Aussenwände können die Wohnungen mit wenigen Radiatoren beheizt werden. Der Verzicht auf eine Fussbodenheizung spart Höhe im Unterlagsboden und dadurch Gewicht. Ausserdem macht die Trennung auch aus wartungstechnischer Sicht Sinn. Die Heizungsanlage ist an das Fernwärmenetz angebunden. Die Loggia schützt die Wohnungen im Sommer vor Überhitzung. Durch eine intensive Begrünung auf dem Dach des Flachbaus im Norden wird ein Kühleffekt erzeugt, der eine natürliche Querlüftung der Wohnungen begünstigt. Eine Photovoltaikanlage deckt den Eigenstromverbrauch.
Nachhaltigkeit und Wirtschaftlichkeit
Mit dem Entscheid das Gebäude umzunutzen statt zu ersetzen ist ein grosser Beitrag zur CO2-Reduktion bereits geleistet worden. Der Dämmperimeter ist kompakt und auf das Minimum reduziert. Das minimiert die Erstellungs- als auch die wiederkehrenden Heizkosten. Die konstruktionsbedingten Wärmebrücken (z.B. durchlaufende Deckenplatten) werden mit Perimeterdämmungen energetisch ertüchtigt oder reduziert. Diese Massnahmen ermöglichen eine signifikante Energieeinsparung und erhöhen den Wohnkomfort in jeder Jahreszeit. Zur energetischen Sanierung werden Materialien gewählt, welche in Bezug auf die graue Energie und die Energieeinsparung einen optimalen Nutzen bieten. Somit ist ein langfristig optimierter Betrieb des Gebäudes möglich.